Bâtiment Univers à Neuchâtel En savoir plus...
Nous sommes très content d'être mandaté pour l'étude de la structure bois d'un future bâtiment universitaire à Neuchâtel.
Nous sommes très content d'être mandaté pour l'étude de la structure bois d'un future bâtiment universitaire à Neuchâtel.
Notre projet de rénovation et de création de nouveaux locaux touche à sa fin. Nous sommes heureux de disposer de nouveaux bureaux.
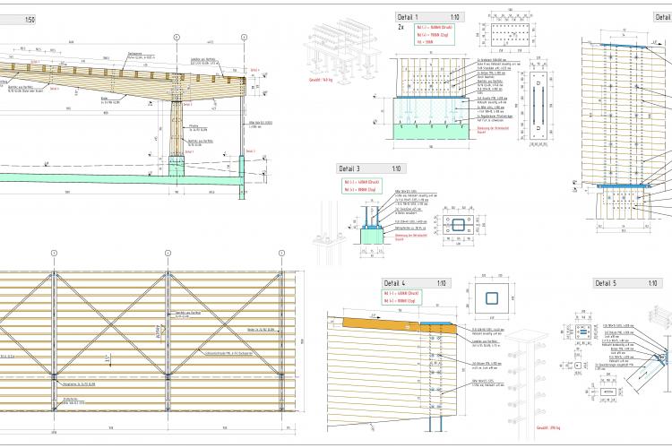
Voici un exemple de nos activités dans le domaine de la planification de structure en bois
